Diagrams of 70 and 64 seat 2nd/Standard Class Laminate coaches supplied by the CME Office at Inchacore several years agon.
1444-1448 Series 700 seat Laminates built 1956-7
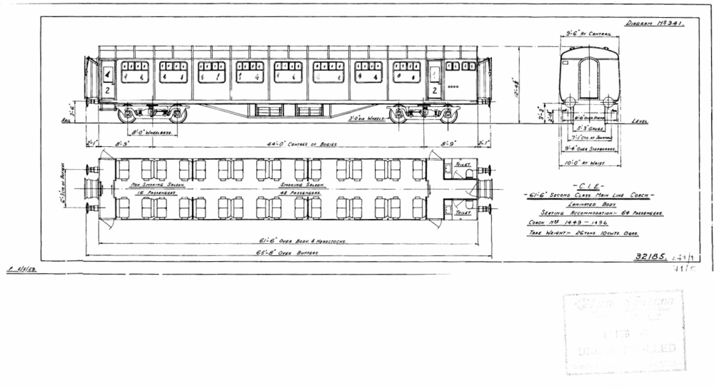
1449-1496 Series 70 seat Laminates introduced 1958-----------------Worsley Works produced an etched set of parts for this type of coach and the 1909-1913 Laminate Brake Standards introduced 1959
GA Drawing of 8' Commonwealth bogie used under many CIE coaches introduced during the 195os including post 54 CIE "Bredin Stock" (timber framed body), Park Royal & Laminate stock.
-
5
.png.c363cdf5c3fb7955cd92a55eb6dbbae0.png)