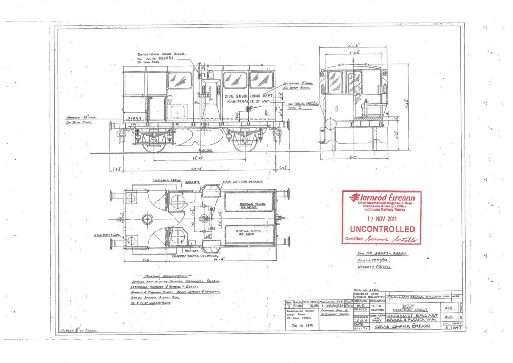
Used on Ballast trains, typically with these Vans at both ends.
	Vans were built in 1977/78 and Numbered 24850-24854
	Weight 20 Tons.
	Entire Van was painted 'Machinery Yellow' with Lettering, numbers and symbols in Black and Brake Stars in Signal Red. The MK1 Flat Underframe was used. (Standard 20' Flat)
- 
CIE Ballast Brake and Plough Van(0 reviews)
 
 User FeedbackThere are no reviews to display. 
 
- 
	Newest Records
- 
	Latest Gallery Images
.png.c363cdf5c3fb7955cd92a55eb6dbbae0.png)
 
	
 
	.jpg.8f9965f2caae1a560ed0b2461bd26890.jpg) 
			.jpg.cac36d70b774e08ae13f0e799588481d.jpg) 
			.jpg.e53f8f1804c2c31257c543a578b96fcb.jpg) 
			.jpg.76440b0f522afe630362d0c060246347.jpg) 
			.jpg.60c8d4561bbe5b50d1f06d6bae360d7c.jpg) 
			.jpg.3144c533d459df18fb42bd0b16171f1a.jpg) 
			.jpg.ad4f1ee0f4d665c4cf3d14ecc555849d.jpg) 
			.jpg.80063c1b053b5cdc648089ebef38772a.jpg)